Главное меню
Главная
О нас
Галерея
Наши объекты
Контакты
Дизайнерские панели
Дизайнерские панели
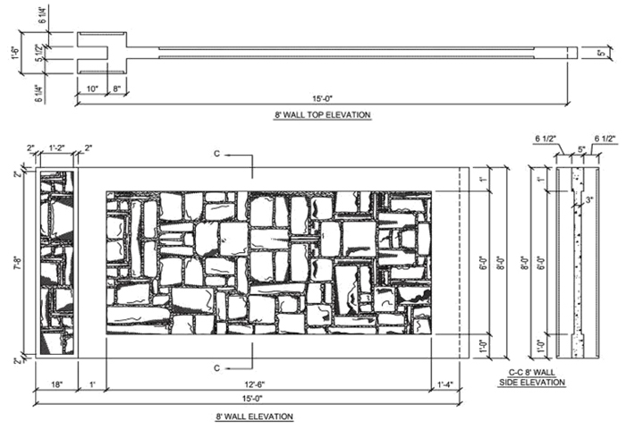
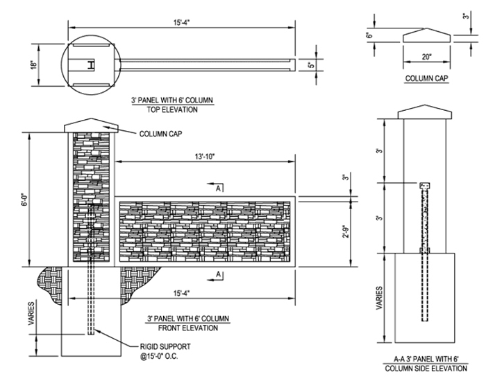
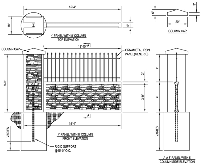
Спецификация
Плиты
Колонны
Колпачки
Дизайнерские блоки
Блоки для подпорных стен
Спецификация
Производство
Производство
Монтаж забора
Спецификация